JYWQ型自動攪勻潛水排污泵 (安裝尺寸)
時間:2010/5/9 來源:浙江揚子江泵業(yè)有限公司
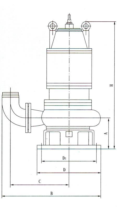
一、移動式安裝尺寸示意圖

|
序號 |
型 號 |
A |
B |
C |
D1 |
D |
H |
|
1 |
50-12-15-1200-1.5 |
135 |
400 |
245 |
225 |
255 |
670 |
|
2 |
50-20-7-1200-1.1 |
132 |
343 |
225 |
150 |
180 |
610 |
|
3 |
50-10-10-1200-1.1 |
132 |
343 |
225 |
150 |
180 |
610 |
|
4 |
50-15-15-1200-2.2 |
135 |
400 |
245 |
225 |
255 |
670 |
|
5 |
50-25-10-1200-2.2 |
135 |
400 |
245 |
225 |
255 |
670 |
|
6 |
50-15-20-1200-2.2 |
135 |
400 |
245 |
225 |
255 |
670 |
|
7 |
50-20-15-1200-2.2 |
135 |
400 |
245 |
225 |
255 |
670 |
|
8 |
50-42-9-1200-3 |
143 |
420 |
265 |
225 |
255 |
750 |
|
9 |
50-17-25-1200-3 |
130 |
433 |
265 |
240 |
285 |
750 |
|
10 |
50-25-22-1200-4 |
135 |
400 |
245 |
225 |
255 |
735 |
|
11 |
50-40-15-1400-4 |
143 |
420 |
265 |
225 |
255 |
750 |
|
12 |
50-25-32-1600-5.5 |
180 |
480 |
295 |
270 |
320 |
820 |
|
13 |
50-40-30-1600-7.5 |
180 |
480 |
295 |
270 |
320 |
820 |
|
14 |
65-25-15-1400-3 |
143 |
435 |
270 |
225 |
255 |
750 |
|
15 |
65-37-13-1400-3 |
143 |
435 |
270 |
225 |
255 |
750 |
|
16 |
65-25-28-1400-4 |
180 |
515 |
317 |
270 |
320 |
800 |
|
17 |
80-40-7-1600-2.2 |
143 |
465 |
295 |
225 |
255 |
685 |
|
18 |
80-29-8-1600-2.2 |
143 |
465 |
295 |
225 |
255 |
685 |
|
19 |
80-43-13-1600-4 |
143 |
465 |
295 |
225 |
255 |
750 |
|
20 |
80-50-10-1600-3 |
180 |
570 |
325 |
280 |
320 |
790 |
|
21 |
80-40-15-1600-4 |
143 |
465 |
295 |
225 |
255 |
750 |
|
22 |
80-60-13-1600-4 |
143 |
465 |
295 |
225 |
255 |
750 |
|
23 |
80-35-25-1600-5.5 |
180 |
550 |
305 |
270 |
320 |
820 |
|
24 |
80-50-25-1600-7.5 |
180 |
550 |
305 |
270 |
320 |
820 |
|
25 |
80-50-30-1600-7.5 |
180 |
550 |
305 |
270 |
320 |
820 |
|
26 |
100-80-9-2000-4 |
180 |
600 |
386 |
280 |
320 |
790 |
|
27 |
100-110-10-2000-5.5 |
200 |
700 |
440 |
370 |
410 |
900 |
|
28 |
100-70-15-2000-5.5 |
200 |
690 |
430 |
370 |
410 |
900 |
|
29 |
100-100-15-2000-7.5 |
200 |
700 |
440 |
370 |
410 |
900 |
|
30 |
100-80-20-2000-7.5 |
180 |
585 |
370 |
270 |
320 |
900 |
|
31 |
100-50-35-2000-11 |
180 |
585 |
370 |
270 |
320 |
940 |
|
32 |
100-70-22-2000-7.5 |
180 |
585 |
370 |
270 |
320 |
900 |
|
33 |
100-100-22-2000-15 |
230 |
815 |
515 |
455 |
495 |
970 |
|
34 |
100-80-30-2000-15 |
230 |
815 |
515 |
455 |
495 |
970 |
|
35 |
150-150-10-2000-7.5 |
213 |
775 |
495 |
360 |
405 |
920 |
|
36 |
150-210-7-2500-7.5 |
242 |
830 |
540 |
365 |
410 |
950 |
|
37 |
150-250-6-2500-7.5 |
242 |
830 |
540 |
365 |
410 |
950 |
|
38 |
150-150-15-2500-11 |
220 |
770 |
495 |
345 |
395 |
990 |
|
序號 |
型 號 |
A |
B |
C |
D1 |
D |
H |
|
1 |
150-200-10-2500-15 |
220 |
770 |
495 |
345 |
395 |
990 |
|
2 |
150-65-40-3200-18.5 |
250 |
930 |
595 |
440 |
495 |
1206 |
|
3 |
150-180-22-2600-18.5 |
270 |
930 |
595 |
440 |
495 |
1226 |
|
4 |
150-150-26-2600-18.5 |
270 |
930 |
595 |
440 |
495 |
1226 |
|
5 |
150-110-30-2600-18.5 |
270 |
930 |
595 |
440 |
495 |
1226 |
|
6 |
150-300-15-2600-22 |
300 |
900 |
575 |
440 |
495 |
1265 |
|
7 |
150-130-30-2600-22 |
270 |
930 |
595 |
440 |
495 |
1226 |
|
8 |
150-100-40-3000-30 |
270 |
930 |
595 |
440 |
495 |
1200 |
|
9 |
200-300-7-3000-11 |
270 |
945 |
605 |
400 |
445 |
1130 |
|
10 |
200-250-11-3000-15 |
270 |
945 |
605 |
400 |
445 |
1130 |
|
11 |
200-300-10-3000-15 |
270 |
945 |
605 |
400 |
445 |
1130 |
|
12 |
200-250-15-3000-18.5 |
270 |
945 |
605 |
400 |
445 |
1226 |
|
13 |
200-400-10-3000-22 |
270 |
945 |
605 |
400 |
445 |
1226 |
|
14 |
200-200-20-3000-22 |
297 |
980 |
630 |
440 |
495 |
1236 |
|
15 |
200-250-22-3000-30 |
297 |
980 |
630 |
440 |
495 |
1236 |
二、自動耦合式安裝示意圖

三、自動耦合式安裝平面圖












